Vendita Appartamento

Cod. Rif. V2415


Descrizione

V2415 - Zona: Centro
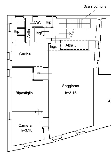
V2415 - CENTRO STORICO - APPARTAMENTO CON DOPPIO INGRESSO, DIVISIBILE IN DUE UNITA' ABITATIVE - Al primo piano di un palazzo storico con struttura portante in muratura, proponiamo appartamento di ca 170 mq: ampio soggiorno, cucina abitabile, due camere da letto, antibagno, bagno con finestra, due ripostigli (di cui uno ad uso cantina). Da ristrutturare. Ideale a SCOPO ABITATIVO, RICETTIVO (asili, palestre, ristorazione...), USO INVESTIMENTO (per studenti e lavoratori). 160mila Euro Tratt. APE in fase di richiesta.

Specifiche Tecniche

Stato di manutenzione:
Da ristruturare
Spese Cond. annue:
€ 300,00
Tipo di stabile:
Appartamento
Target stabile:
Medio - signorile
Piani dello stabile:
4
Anno di costruzione:
1900
Piano:
Primo
Riscaldamenti:
A norma certificato
Cucina:
Abitabile
Bagni:
1
Pav. zona giorno:
Parquet
Pav. zona notte:
Parquet
Box doccia:
No
Citofono:
Si
Classe Energetica:
Mq:
169

Mappa Zona Centro